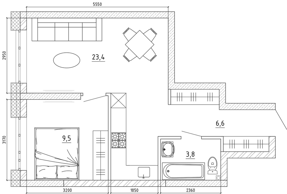
2-комнатная
47.1 м2
7 035 000 руб.
1 человек
смотрел эту квартиру за 24 часа
Планировка на других этажах
2 эт.
47.1 м2
7 035 000 руб.
вы смотрите
3 эт.
47.1 м2
7 181 000 руб.
+146 000
7 эт.
47.1 м2
7 328 000 руб.
+293 000
12 эт.
47.1 м2
7 475 000 руб.
+440 000












